Precision scanning and BIM services for busy
Architects, Engineers, Designers and Developers
Project
TENANT IMPROVEMENT PROJECT
Littleton, CO
Littleton, CO
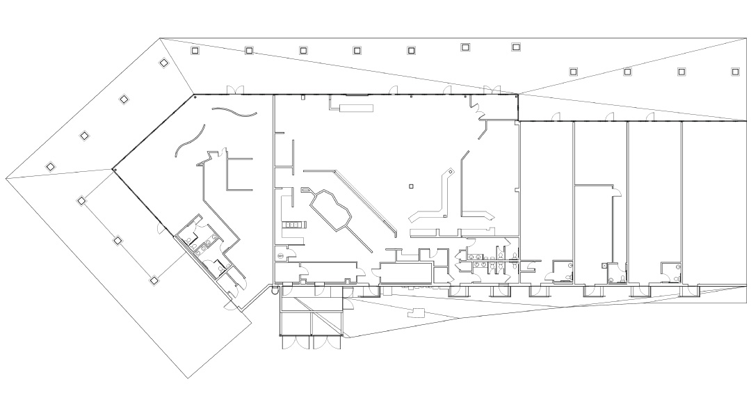
Whenever a new tenant is looking to take over a vacant commercial property, accurate and thorough as-builts are needed to gain a full understanding of the space. For this project, a large, national hardware chain was looking to take over five existing tenant spaces, combining them to create one large space for their next outpost. In a project like this, it’s imperative that the as-builts are accurate, as the incoming retailer will need to do shelving layouts, MEP design, code compliance studies, and more to ensure that the new store will conform to their exacting standards.
For this project, a leading local architect was hired to do the design for this new store, and reached out to Denver Drafting & Design to do the as-builts. We’ve worked with this architect on many projects in the past, and have a great working relationship based on the understanding of expectations on both sides. We pride ourselves on the working relationships we’ve built with this architect and many other local and national firms.
Floor Plans
Point Cloud
Elevations




