Precision scanning and BIM services for busy
Architects, Engineers, Designers and Developers
Project
Colorado Springs, CO
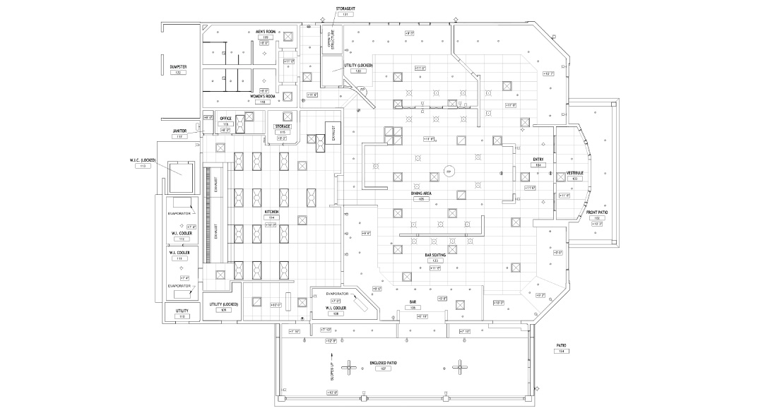
Whenever an existing restaurant or other tenant space changes hands, it’s extremely important for the incoming tenant to have accurate as-builts, in order to fully understand the space and come up with a game plan to renovate it to suit their needs. For this project, the incoming tenant wanted to know locations of all existing lighting, HVAC equipment, electrical, and kitchen equipment, in addition to the standard architectural details that we would typically provide.
By providing a laser scan of the existing space, we were able to generate a complete Revit model for the client that contained all of the aforementioned
information. Using traditional methods to measure a space like this would require scaffolding and hundreds of man-hours to complete, with an extremely high associated cost. By using a laser scanner to measure the space, Denver Drafting & Design was able to visit the site and complete the scan within a single day, and generate the as-builts within a week afterwards. disruptions to the restaurant’s operations.




