Precision scanning and BIM services for busy
Architects, Engineers, Designers and Developers
Project
San Diego, CA
w/Criterion Acoustics
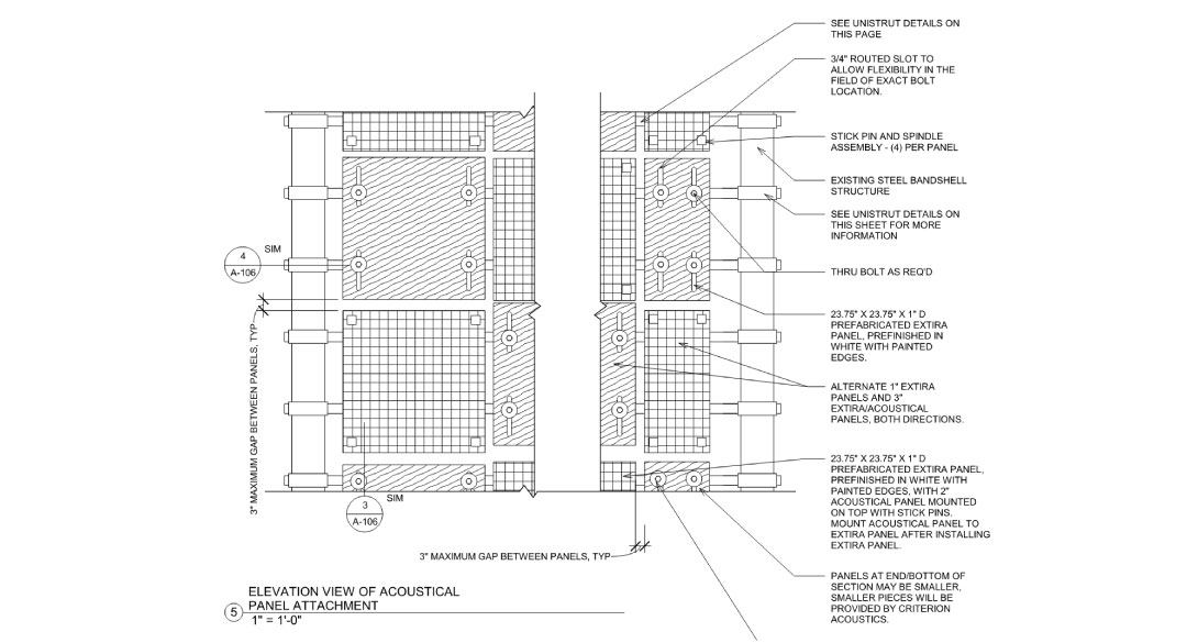
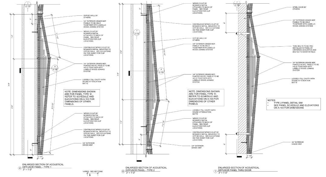
The Rady Shell was an ambitious project to bring an outdoor bandshell to the beautiful San Diego shoreline. The architect on this project knew that having great acoustics was paramount for a successful project, and hired Criterion Acoustics to design the implementation, installation, and coordination of thousands of acoustic panels inside the shell. Since this project was done fully in Revit, the project standard called for all of the panels, along with any installation methods, to be fully modeled and coordinated in Revit as well.
Due to the complex curved geometry of the space, modeling the treatments was extremely challenging. Denver Drafting & Design was hired to assist, as our Revit experience and knowledge is exactly what was needed to tackle a project of this magnitude. In addition to designing and engineering the installation of the panels, we modeled the installation in Revit, which required modeling every individual piece of Unistrut necessary for mounting the panels, in addition to all of the panels themselves. Furthermore, we provided full shop drawings, fabrication and installation details, and everything else that was required for the contractors to be able to successfully mount the panels in the field.
DELIVERABLES





