Precision scanning and BIM services for busy
Architects, Engineers, Designers and Developers
Project
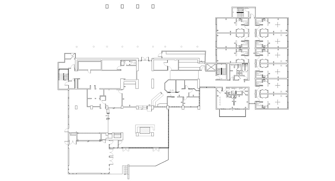
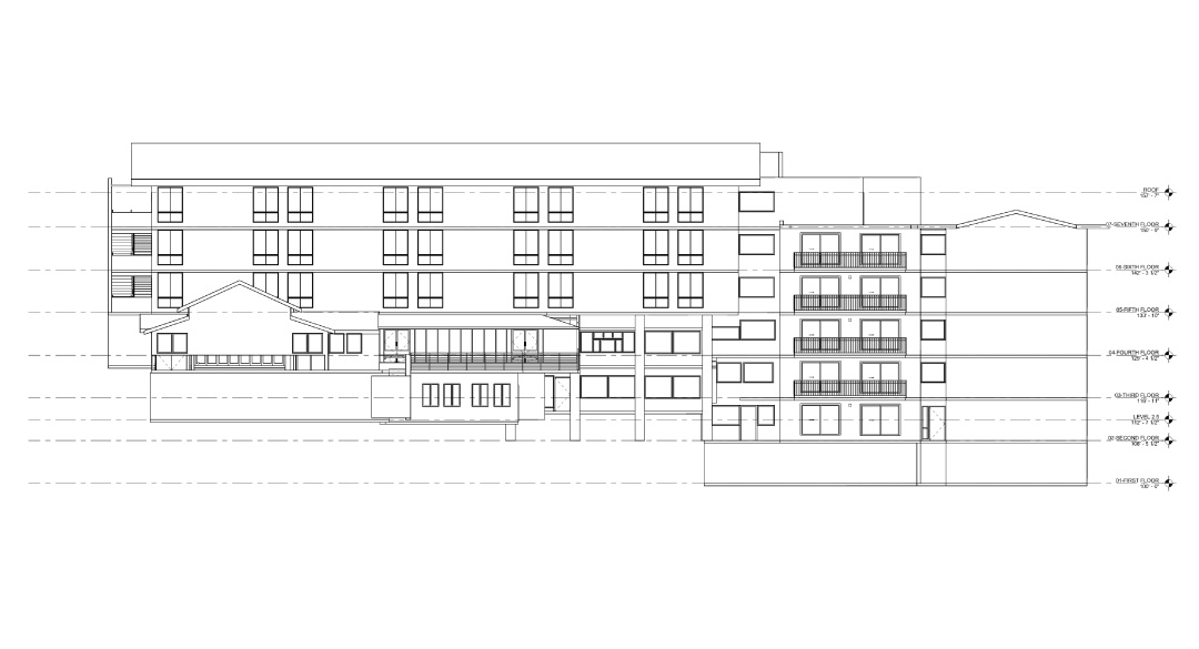
Located in beautiful Snowmass, Colorado, the Stonebridge Inn is an ideal place to wind down and lay your head after a day on the slopes. When it came time to remodel the historic hotel to bring it up to modern standards, a world-class architectural firm and interior designer were brought on board. However, without an accurate understanding of the existing conditions and as-built drawings, they couldn’t begin their work.
Denver Drafting & Design was hired to perform a laser scan of the interior and exterior of the building, including all 100 rooms, create a point cloud from the scan, and then use that to create an as-built Revit model of the entire building. The unparalleled speed of the laser scanning process allowed us to get in and perform the entire measurement in two days, minimizing impact to the operations of the hotel and disruptions to the guests.
DELIVERABLES



