Precision scanning and BIM services for busy
Architects, Engineers, Designers and Developers
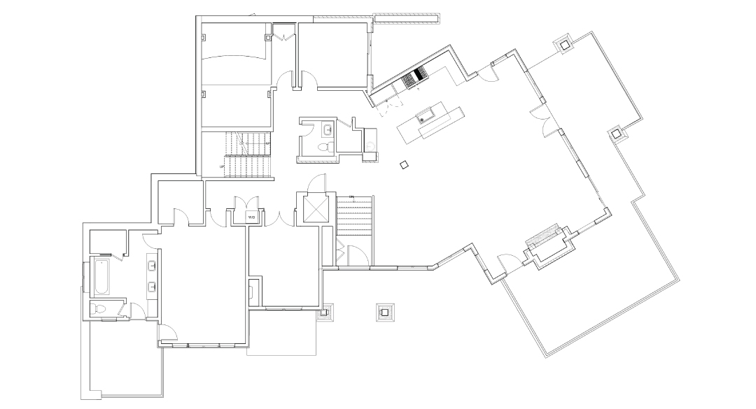
Project
Vail, CO
Before embarking on a major remodel, it’s critical to understand the space, inside and out. When the homeowner of this high-end residence in beautiful Vail, Colorado hired a renown local architect to design their remodel, the architect knew that he needed an accurate as-built to capture all the custom details of the house, and that level of detail would only be possible using a laser scanner.
Denver Drafting & Design was hired to perform the scan, process the scans into a point cloud. and use that point cloud to create an as-built Revit model for the client. This Revit model could then be used to easily generate floor plans and elevations for the architect to begin his design. Since we are a local firm, we were able to get out to the site and perform the scan all in a single day, eliminating the need to have someone fly out to the site, like a larger, national firm would have to do.
DELIVERABLES



